Баня под ключ 6×2,5 — тёплая, красивая и готовая к установке за один выезд
Собираем баню в сухом цеху за 2 недели, привозим готовый модуль и ставим на участке за считанные часы — без затяжной стройки, грязи и бесконечных переделок.
Не стройка на участке, а готовое решение
Вы получаете уже собранную баню с отделкой, печью и продуманной инженерией. Остаётся доставить модуль и установить на подготовленное основание.
Быстро
Изготовление за 2 недели в сухом цеху. Монтаж на участке — за считанные часы без мокрых процессов.
Тепло и экономично
Минеральная вата 100 мм в стенах и 150 мм в полу и потолке создаёт эффект термоса.
Сухой пиломатериал
Используем брус камерной сушки до 12% влажности — меньше риска усадки, щелей и перекосов.
Защищено на заводе
Все деревянные элементы проходят огне-биозащиту. Дополнительно ставим сетку от грызунов.
Безопасная электрика
Сухая зона и парная разведены по разным типам кабеля. В парной используется термостойкий РКГМ.
Прозрачный договор
Фиксируем цену в договоре. Предоплата 50%, остаток — только после завершения работ и приёмки.
Три готовых размера под разный участок и бюджет
Можно подобрать баню под свободное место на участке, сценарий использования и комфортный бюджет без потери качества сборки.
Норд 6×2,5 м
Максимум комфорта: можно выбрать вариант с моечной или с увеличенной комнатой отдыха.
Норд 5×2,5 м
Компактнее по длине, но всё ещё удобная планировка для дачного участка и семейного использования.
Норд 4×2,5 м
Хороший вариант для небольшого участка, гостевого домика или компактной личной парной.
Современный фасад и тёплый интерьер
Снаружи можно выбрать окрашенный профлист С8, имитацию бруса или сайдинг. Кровля — окрашенный профнастил МП20.
Как выглядит баня снаружи

Как выглядит баня внутри
Всё нужное уже включено в базу
Базовая версия «Норд» уже подготовлена для комфортного использования без болезненных «докупов» после подписания договора.
Снаружи
- Профлист С8 окрашенный / имитация бруса / сайдинг
- Кровля из окрашенного профнастила МП20
- Надёжная входная дверь ПВХ
Комната отдыха
- Вагонка штиль сосна, сорт А–Б
- Высота потолков 2 м, можно увеличить до 2,5 м
- Окна ПВХ двухкамерные
Парная
- Вагонка штиль сосна, сорт А–Б
- Потолок и полок из липы класса А
- Внутренние двери из закалённого стекла
Пол и инженерия
- Шпунтованная строганная доска
- Гидроизоляция
- Электрика по зонам, 3 светильника
Выберите подходящую планировку
Каждая вкладка показывает только одну конкретную планировку без смешивания разных вариантов.

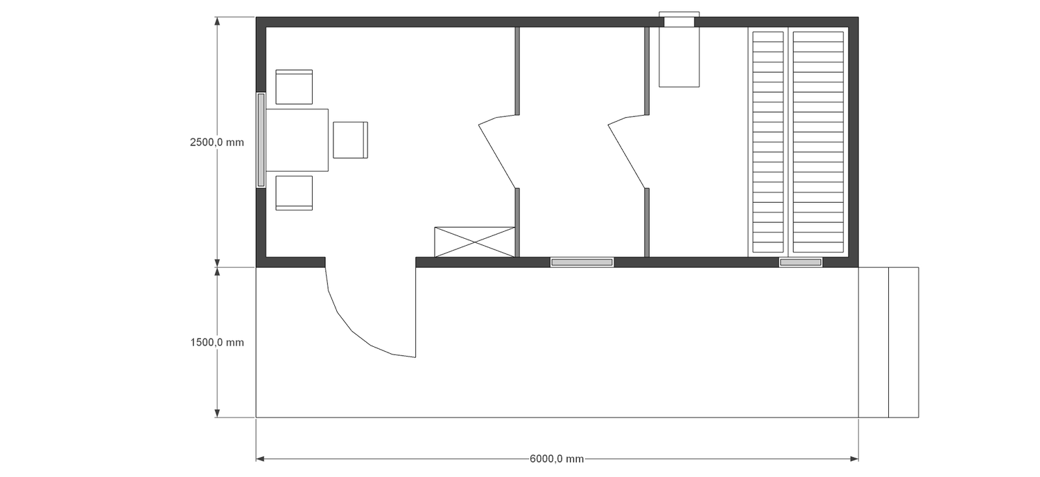
6×2,5 м — комната отдыха + парная + моечная
- Комната отдыха: 2,4 × 2,22 м
- Парная: 1,9 × 2,22 м
- Моечная: 1,2 × 2,22 м
- Окна: ПВХ двухкамерные + окно с рамой из липы в парной

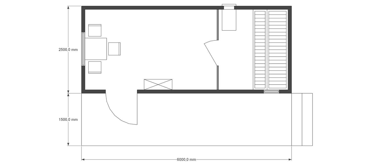
6×2,5 м — увеличенная комната отдыха + парная
- Комната отдыха: 3,7 × 2,22 м
- Парная: 1,9 × 2,22 м
- Входная дверь: ПВХ
- Дверь в парную: закалённое стекло 8 мм

5×2,5 м — компактная баня с полноценной парной
- Формат: удобный вариант для небольшого дачного участка
- Назначение: быстро прогревается и занимает меньше места при доставке и установке
- Компоновка: комната отдыха + парная по каталожной планировке
- Подходит: если нужен баланс между ценой, удобством и габаритом

4×2,5 м — самая компактная и доступная модель
- Формат: минимум занимаемого места на участке
- Назначение: отличное решение для 1–2 человек или как гостевая баня
- Компоновка: комната отдыха + парная по каталожной планировке
- Плюс: самая доступная цена в линейке «Норд»
Не «показная», а реально долговечная печь
Мы ставим печь Luxe 27 в сетке, а не упрощённый вариант ради экономии в смете. Это один из главных факторов комфорта и срока службы всей бани.
- сталь 6 мм из новой ГОСТ трубы 273 диаметра;
- до 120 кг камней, камни можно подарить бонусом;
- есть отсекатель пламени — тепло остаётся в парной;
- вынос печи выполняется по нормам пожарной безопасности;
- опционально возможно подключение газового оборудования.


Тонкости в деталях, скрытых от глаз
Мы сами строгаем брус, высушиваем его до 12% влажности, пропитываем огне- и биозащитным составом.
Так мы добиваемся пожаробезопасности, высокой точности подгонки деталей, предотвращаем усадку и образование щелей, а соответственно, перекосов.
Конструкция из сухого бруса прослужит десятки лет, в отличие от дерева естественной влажности, которое может сгнить в бане за пару лет.
Можно доукомплектовать под ваш участок
Цены прозрачные — каждую опцию добавляем отдельно, без скрытых доплат после замера.
Понятный процесс без сюрпризов
Согласование
Подбираем фасад, планировку и нужные опции. Сразу фиксируем комплектацию и стоимость в договоре.
Предоплата 50%
Запускаем заказ в производство после аванса. Остаток — только по факту завершения работ и приёмки.
Сборка в цеху
Изготавливаем модуль в сухом помещении, где конструкция не набирает лишнюю влагу и не стоит под дождём.
Доставка и монтаж
Привозим манипулятором, устанавливаем на участке и передаём готовую баню с комплектом документов.
Напишите нам адрес вашего участка прямо сейчас, и мы рассчитаем точную стоимость бережной доставки!
Можно написать прямо в чат на сайте, в Telegram или в WhatsApp. Подскажем по размеру, комплектации, фундаменту и доставке.
Самый быстрый способ получить точный расчёт — сразу прислать адрес участка и написать, какой размер бани вас интересует.
Виктора Полякова, д. 5, офис 5
Ремонтный проезд, 15